

Kontext und StädtebauGelegen im Perimeter der Baugruppe «Bahnhofstrasse & Vorstadt» des Bauinventars, welcher den historischen Kontext der Parzellen bildet, bezweckt die Kernzone die zeitgemässe und qualitätsvolle Weiterentwicklung des Raumes Altstadt – Bahnhof - Chronematt hin zu einem urbanen Zentrum, unter Berücksichtigung der historischen Strukturen und Ortsbildschutzzone. Die Bahnhofstrasse in Willisau mit ihren grossen, zusammenhängenden Vorgärten dient als Ausgangslage für die Ausformulierung der beiden Stadthäuser. Die vorherrschenden Punktbauten wurden als Referenzen aufgenommen und wiederum mit je einem Volumen pro Parzelle besetzt.



Dachlandschaft
Die beiden Stadthäuser gehen auf die Volumetrie der umliegenden Schrägdacher ein. In frischer Reflexion widerspiegelt der Ausdruck die zeitgemässen Anforderungen an neue klimatische Bedingungen, an modernem Wohnbedürfnis und dem immer wichtigeren Aspekt der Solargewinnung. So nehmen wortwörtlich angelehnt, die matten, farblich angepassten Photovoltaikpaneelen wie grosse Ziegel Bezug auf die Nachbarsdächer.


FreiraumDer Freiraum gliedert sich in eingefriedete private Gärten und gemeinschaftlich genutzte Erschliessungszonen, die sich bei den seitlich angeordneten Eingängen weiten. Entlang der Bahnhofstrasse bilden Grosssträucher wie Magnolie, Goldregen oder Blumenhartriegel markante Blickpunkte und nehmen so über das Grünvolumen den Charakter des Quartiers und die stimmigen Bilder der bestehenden Vorgärten auf.






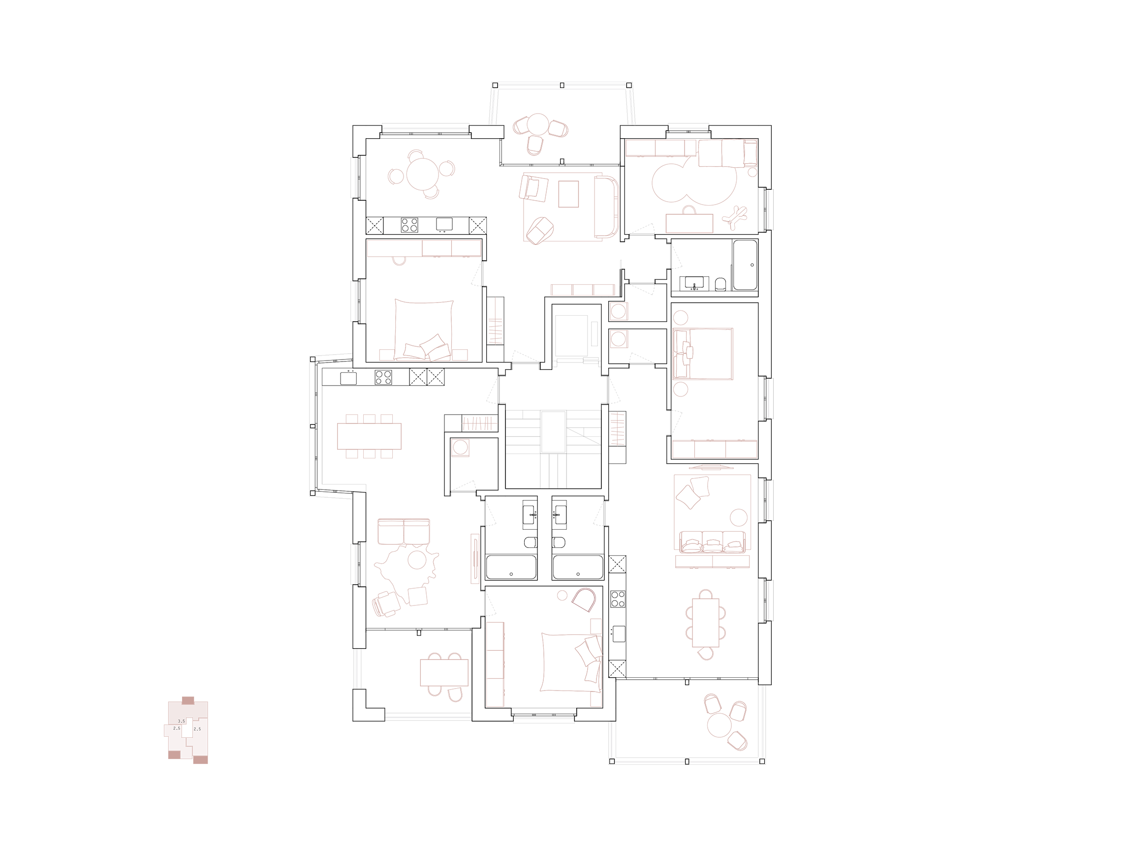
Architektur und Materialität
Die muralen Fassaden mit einem Dickschicht verputzten Einsteinmauerwerk der beiden Stadthäuser gliedern sich in die Reihe der Nachbarsbauten ein und nehmen farblich auf sie Bezug. Durchdrungen werden die tragenden Mauerwerke durch leichte Erker, welche rhythmisierend die strenge Gliederung auflockern. Diese Bauteile ermöglichen Seitenblicke entlang der Bahnhofstrasse an den Hauptfassaden, empfangen die Besuchenden bei den Eingängen und beherbergen gedeckte Aussenräume mit dem Ziel, Ein- und Ausblicke zu vervielfältigen und anzureichern.Die vertikale Gliederung der Bauten in Erd-, Regulär- und Dachgeschossen widerspiegelt den ortsüblichen Bautypus sowie das Raumprogramm im Innern.

Die grossen Familienwohnungen im Erdgeschoss sind ausgestattet mit grosszügigen, privaten Gärten und besetzen fast die kompletten Parzellen. Abgeschlossen mit einem betonierten Sockel sind sie robust ausgestaltet und fundieren die Fassade.

Die darüber liegenden, kleineren Wohnungen für Singles und Paare sind auf zwei Geschossen angeordnet und bilden die Regelgeschosse der Gebäude. Alle Wohnungen haben dank der Erker jeweils eine dreiseitige Orientierung und attraktive Aussenräume. Die Duplex-Wohnungen über Dachgeschoss und das hineinspringende Attika führend bilden mit ihren privaten Terrassen den dezenten Abschluss der beiden Vorstadthäuser.




Primarschule St. Martin
Die bestehende Schulanlage St. Martin befindet sich am nordöstlichen Stadtrand von Sursee zwischen Wohngebieten unterschiedlicher Massstäblichkeit und einer weitläufigen Landwirtschaftszone. Die bereits 2009 von Burkard Meyer Architekten ergänzte Schulanlage mit einem zweigeschossigen Schulhaus und einer Einfachturnhalle, bedarf aufgrund des steigenden Raumbedarfs und neuen Anforderungen an das pädagogische Umfeld einem weiteren Ausbauschritt. Das Dreigespann aus Schulhaus, Kindergarten und Turnhalle soll nun durch einen neuen Schulbau und eine zusätzliche Einfachturnhalle ergänzt und weiterentwickelt.
Primarschule St. Martin
Die bestehende Schulanlage St. Martin befindet sich am nordöstlichen Stadtrand von Sursee zwischen Wohngebieten unterschiedlicher Massstäblichkeit und einer weitläufigen Landwirtschaftszone. Die bereits 2009 von Burkard Meyer Architekten ergänzte Schulanlage mit einem zweigeschossigen Schulhaus und einer Einfachturnhalle, bedarf aufgrund des steigenden Raumbedarfs und neuen Anforderungen an das pädagogische Umfeld einem weiteren Ausbauschritt. Das Dreigespann aus Schulhaus, Kindergarten und Turnhalle soll nun durch einen neuen Schulbau und eine zusätzliche Einfachturnhalle ergänzt und weiterentwickelt.StädtebauDas neue Schulhaus mit insgesamt 18 Klassenzimmern positioniert sich auf vertrauter Stelle im Westen des Areals, auf die des bestehenden Pavillonbaus und tritt bildlich in dessen Fussstapfen. Als ein kompaktes längliches Volumen präsentiert sich der Schulhausneubau und bildet den Auftakt der Anlage, welche im Osten durch die zweite Einfachturnhalle abgeschlossen und vervollständigt wird. Der viergeschossige Schulhausbau und das zweigeschossige Sportgebäude mit konzentriertem Fussabdruck positionieren sich auf bereits verbauten Flächen, was neben einer optimierten haushälterischen Bodennutzung auch die Vertrautheit mit der Anlage garantiert. Das Ensemble aus Schulhaus, Kindergarten und Turnhalle orientiert sich selbstverständlich zum gemeinsamen Pausenplatz und bildet seine räumliche Begrenzung, wo dieser zum pulsierenden Herzen der Anlage wird.






Bestand und Schulneubau
Das Projekt setzt Funktionalität und Wirtschaftlichkeit bereits im Gebauten um, wo Räume im bestehenden Schulhaus dem Raumprogramm entsprechend sinvoll neu zugeordnet werden, ohne in vorhandene Strukturen einzugreifen. Die bestehende Einfachturnhalle bleibt unverändert, ihre Raumstruktur wird im neuen Turnhallenbau aufgenommen und weiterentwickelt. Ebenso wirtschaftlich und nachhaltig präsentiert sich der kompakte Schulneubau.
Den Auftakt des viergeschossigen Baukörpers markiert ein durchlässiges Sockelgeschoss mit öffentlicher Nutzung. Die Erschliessung erfolgt über die grosszügig dimensionierte Eingangshalle. Hier befindet sich eine zentrale Treppenanlage, Räume für die Tagesstruktur, den Mittagstisch und eine unterteilbare Aula, sowie eine mehrfach nutzbare Küche.
Lernlandschaft
Drei repetitiv gehaltene Lerngeschosse umfassen je sechs flexibel gestaltbare Klassen- und Gruppenräume. Zwei Erschliessungsbereiche in Form einer gemeinsam genutzten Lerninsel verbinden je drei Klasseneinheiten zu einem Lerncluster. Sie können über grossflächige öffenbare Trennelemente den transparent gestalteten Gruppenräumen angeschlossen werden. Das variable Lerncluster bietet Raum für gemeinsames Arbeiten in den jeweiligen Stufen, aber auch große Freiflächen zum Diskutieren und Lernen für je zwei Klassenjahrgängen.Verbunden sind alle vier Etagen über den zentralen, die Treppenanlage flankierenden Lichthof. Er schafft interne Sichtbezüge in alle Richtungen, verbindet die Geschosse in der Vertikalen und sorgt für eine optimale natürliche Belichtung bis in das Gebäudeinnere. Großzügigkeit, gute Belichtung durch Tageslicht und eine funktionelle, verkehrsfreundliche Anordnung sorgt für ein Höchstmass an multifunktionaler und anpassungsfähiger Raumstruktur.





Material und Konstruktion
Ein klar organisierter, in allen Geschossen der gleichen Systematik folgender, Holz-Skelettbau bildet das Tragwerk des neuen Schulhauses. Die für den Holzbau charakteristische Konstruktionsweise wird an der Fassade ablesbar nach Aussen geführt.Die für den Holzbau charakteristische Konstruktionsweise wird an der Fassade ablesbar nach Aussen geführt. Eine entsprechende Abbildung der dahinter liegenden Raumstruktur erfolgt über die wechselnde Ausrichtung der Holzschalung. Die Vertikalität des bestehenden Baus von Burkard Meyer wird aufgenommen und weiterentwickelt und durch horizontal gerichtete Brüstungselemente ergänzt. Das Wechselspiel aus stehender und liegender Schalung verweist auf die dahinter zusammengehörigen Räume und transportieren das Innere nach Aussen.
Erscheinung
Ein zum Bestand differenziert erscheinendes rötliches Fassadenbild widerspiegelt das Nebeneinander von Neu und Alt und steht für die unterschiedlichen Abschnitte und das Wachsen der Gesamtanlage. Ergänzend zu den beiden grauen Baukörpern wirkt das Rot anregend, warm und bindet die Bauten spielerisch über den gemeinsamen hölzernen Ausdruck zu einem Ganzen zusammen.

Städtebau
Das südlich von der historisch bedeutenden Klosteranlage Eschenbach gelegene Unterdorf soll im Bestand wie auch auf den noch unbebauten Parzellen weiterentwickelt und zusammen mit den Freiräumen aufgewertet werden. Der Projektvorschlag leitet die Verdichtung aus dem Bestand heraus ab. Dabei sollen die siedlungsräumlichen Elemente, die Durchwegung, die bauliche Charakteristik und weitestmöglich die bestehenden Gebäude erhalten bleiben.
Die prägende Voraussetzung bildet die starke und für den Dorfkern von Eschenbach identitätsbestimmende Komponente der topografischen Modulation. Geprägt ist diese durch die künstlichen Wasserkanäle und die markanten Stützmauern bei der Klosteranlage und der umliegenden Nachbarschaft. Diese Ausgangslage soll weitergeführt werden. Zusammen mit dem deutlichen Gefälle der Topografie entsteht daraus eine für das Projekt prägende Komponente: die der «doppelten» Erdgeschosse. Mit dem direkten Terrainbezug bergseitig wie auch hangseitig tragen die Gebäude zu einer starken räumlich funktionalen Vernetzung bei.
Die prägende Voraussetzung bildet die starke und für den Dorfkern von Eschenbach identitätsbestimmende Komponente der topografischen Modulation. Geprägt ist diese durch die künstlichen Wasserkanäle und die markanten Stützmauern bei der Klosteranlage und der umliegenden Nachbarschaft. Diese Ausgangslage soll weitergeführt werden. Zusammen mit dem deutlichen Gefälle der Topografie entsteht daraus eine für das Projekt prägende Komponente: die der «doppelten» Erdgeschosse. Mit dem direkten Terrainbezug bergseitig wie auch hangseitig tragen die Gebäude zu einer starken räumlich funktionalen Vernetzung bei.
Erschliessung und Freiraum
Die Achse Dorfmühleweg (Dorfplatz – Werkplatz Mühle – Postplatz – Rothenburgstrasse) bildet das Rückgrat der Freiraumkonzeption. Diese alte Wegverbindung wird als ruhigere «dörfliche» Hauptachse konzipiert, sozusagen als Gegenpol zu den Hauptverkehrsachsen. Diese werden aber nicht vom Rückgrat abgehängt, sondern sehr stark über bestehende Querachsen verknüpft. So entsteht von der Rothenburgstrasse eine Abfolge von Freiräumen mit unterschiedlicher Nutzung und unterschiedlichem Öffentlichkeitsgrad.



Dorfplatz mit Dorfmühle und Züntihaus
Der im Unterdorf zentrale Dorfplatz wird als Versammlungs- und Begegnungsort reaktiviert und erhält mit den entsprechend angesiedelten Nutzungen des Saals und dem Aussenbereich der Gastronomie Rössli öffentliche Nutzungen. Die Dimension und die Gestaltung des Dorfplatzes lassen vielfältige Nutzungsszenarien zu, so dass dieser Platz vom Marktplatz bis zum Festplatz, aber auch für kleinere Anlässe optimal und von allen genutzt werden kann. Die Dorfmühle erhält ostseitig in die Hanglage eingefügt den Saalanbau, der den Dorfplatz siedlungsbaulich zusätzlich fasst und den heute bestehenden platzangrenzenden Grünraum klar zuordnet. Der Saalanbau ordnet sich als feinteiliger Holzbau dem Mühlegebäude unter. Damit ergibt sich eine sinnfällige und gut bespielbare Nutzungseinheit mit starkem Bezug zum Dorfplatz.
Gasthaus Löwen mit Werkplatz
Der heutige Gasthaus Löwen wird in seiner Funktion und Adressierung zur Kantonsstrasse erhalten. Das heutige Volumen wird geklärt. Im neuen Anbau werden in den oberen Geschossen Wohnungen mit grosszügigen Veranden untergebracht. Der Anbau ist als Holzbau konzipiert und nimmt damit Bezug auf die rückwärtigen Holzbauten im historischen Bestand. Im Sockelgeschoss zum Werk- und Aufenthaltsbereich gegen die Dorfmühle werden Wohn-Werk-Ateliers vorgeschlagen. Der mittig gelegene Werkplatz Mühle wird zum Arbeits- und Aufenthaltsbereich für die Anwohner und eröffnet Passanten eine Querachse zur östlichen Nachbarschaft.


Weiterbauen
Weiterbauen wird aus der direkten Bezugnahme auf die bestehenden Gebäude heraus abgeleitet. Im Sinne der Nachhaltigkeit soll an diesem Bestand weitergebaut werden. Die Gestaltung der neuen Gebäude sucht eine Anlehnung an den formalen Vorgaben der Bestandsbauten. Das Weiterbauen basiert so auf dem gewohnten Bild, für das eine zeitgemässe Entsprechung gesucht wird. Beim Restaurant Löwen wird der bestehende westliche Anbau durch einen neuen Anbau mit grösserer Gebäudetiefe ersetzt. Das Züntihaus und die Dorfmühle werden als charakteristische und sehr wertvolle historische Gebäude in ihrem Bestand erhalten, respektive nur geringfügig und unter Einhaltung denkmalpflegerischer Grundsätze modifiziert.Haus am Postplatz
Der heute kommerziell genutzte Postplatz, wird in seiner Erscheinung im Bereich der Neubauten geklärt und behält die für Eschenbach wichtige Funktion bezüglich kommerziell genutzter Nutzungen. Mit dem neuen Haus am Postplatz und dem Gasthaus Löwen wird der Raum zum Kloster geklärt und ihre Verknüpfung zur Luzernstrasse akzentuiert. Das Haus am Postplatz wird als eigentliches zentrumsbestimmendes Dorfhaus mit Verkauf in den Sockelgeschossen und Wohnungen in den oberen Geschossen konzipiert. Das zweiteilige Volumen reagiert in seiner austarierten Massstäblichkeit auf die spezifischen ortsbaulichen Gegebenheiten. Konzipiert als mineralischer Bau, wird es in seiner Stellung in der ersten Reihe an der Strasse und gegenüber dem Kloster.



Städtebau
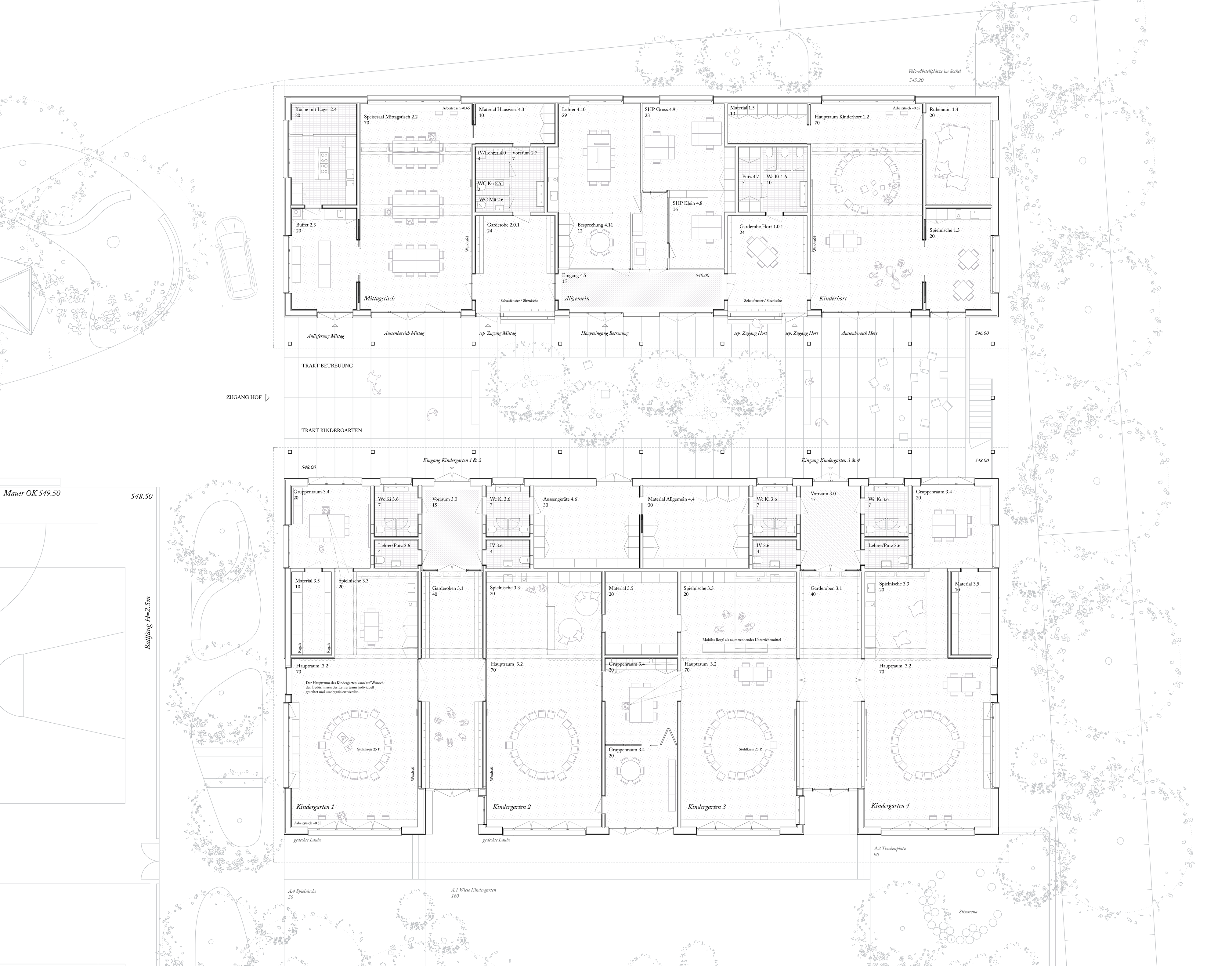
In der Gemeinde Untervaz nimmt die Schule eine besondere Stellung im Dorfgefüge ein. Die großmaßstäblichen Schulbauten der Primar- und Oberstufe entsprechen im Sinne einer eigenständigen und freundlichen Lernumgebung, dem Charakter eines Schulcampus und werden am östlichen Rand von einem bestehenden Kindergartenbau aus dem Jahre 1938 vom Parkplatz aus eröffnet. Als Antwort auf den gesteigerten Raumbedarf für die vier Kindergarteneinheiten und dem zusätzlichen Angebot an tagesbetreuenden Nebennutzungen wie dem Mittagstisch und dem Kinderhort schlägt das Projekt «Hofgeschichten» einen neuen Kindergarten aufgeteilt in zwei selbstständig geführte Trakte anstelle des bestehenden Kindergartengebäudes vor, mit der ein nachhaltiges Schulraumangebot und die schulische & pädagogische Förderung in Zukunft garantiert werden.
Erschliessung und Freiraum
Die ansteigende Topografie wird genutzt, um eine erhöhte Terrasse zu erzeugen. Der eingeschossige, pavillonartige Holzbau umschliesst mit dem neuen Kindergarten im Süden und dem nördlichen Trakt für die Betreuung einen Hofraum. Das Projekt «Hofgeschichten» schreibt demnach die ortsbauliche Setzung der über die Jahre gewachsenen Schulanlage auf eine erfrischende Weise fort und nimmt die räumliche Wirkung der westlichen Primarschule gedanklich auf. Wie sein Vorbild spannt der Kindergarten mit der Betreuung zusammen einen Hofraum auf, der während der Unterrichtszeit einen für die Altersstufe geschützten Pausenhof und Eingangsbereich für alle Kinder im Vorschulalter bildet. Mit der neu geschaffenen Platzmitte fasst der neue Kindergarten durch seine konsequente ortsbauliche Haltung die Schule als gemeinsamen Lern- und Erlebnisraum zusammen.




Kindergarten
Der neue Kindergartenbau offeriert den Kindergärtner/innen und Lehrpersonen optimale Voraussetzungen. Folglich sind im Neubau alle Nutzungen ebenerdig im Erdgeschoss organisiert und entsprechend barriere- und hindernisfrei zugänglich. Die vier Kindergarteneinheiten sind über die Garderobe paarweise kombiniert, was Synergien fördert und eine einfache Übersicht auf zwei Kindergartengruppen gestattet. Die Garderobe bespielt die gesamte Raumtiefe und lässt eine offene und beidseitige Erschliessung in den Aussenraum zu. Jede Einheit verfügt über einen Nassraum und zentral zugängliche Materialräume. Alle Haupträume haben einen direkten Sichtbezug auf den südlichen Aussenraum und profitieren den Tag hindurch von der Morgen- und Abendsonne. Dank den Oblichtern und die Lage der Öffnungen erhalten die Haupträume viel freie Wandflächen.Die Grundrissstruktur offeriert eine maximale Flexibilität und Vielfalt der Raumkonstellationen. Das bedeutet, dass die Räume als einzelne, abgeschlossene Raumzellen genutzt oder zu einem gemeinsamen grossen Raumgefüge verbunden werden können. Das gesamte Gebäude kann dadurch zur grossen einzigartigen Kindergarten-Lernlandschaft umfunktioniert werden.
Tagesbetreuung
Im nördlichen Trakt sind die betreuenden Unterrichtsangebote vereint. In der Mitte vom Trakt liegt der gemeinsame Eingang und das Lehrerzimmer. Zu je einer Seite schliesst der Mittagstisch und der Kinderhort an. Pädagogische Synergien werden direkt gefördert. Wie der Kindergarten profitiert auch die Betreuung von einer optimalen Belichtung aller Räume und hohen Nutzungsflexibilität.Materialität
Das hölzerne Schindelkleid und der in Beton massive Sockel nehmen gestalterisch Bezug auf die Materialität der Primarschule. Eingesetzt werden gesägte grossformatige Schindeln aus regionalen Fichtenbeständen. Das im Hofraum grosse und umlaufende Vordach schützt die Holzfassade und die Eingangsbereiche. Das Fichtenholz, das über die Zeit eine gleichmässige Alterung erhält, lässt die Atmosphäre zum nahen Wald am Calanda aufkommen. Die silbern gehaltenen Fensterrähmen erhellen und akzentuieren die Eingänge und Öffnungen.





Städtebau
Das Projekt Samt und Sonders schlägt für die neue Schulanlage Kottwil mit den drei Primarschulklassen der 1.-6. Klasse einen Ersatzneubau anstelle der bisherigen zwei Schulbauten vor, um das nachhaltige Schulraumangebot und die zeitgemässe schulische Förderung zu garantieren. Die parallele Setzung der neuen Schulanlage entlang der Gishalde nimmt die bauliche Ensemblewirkung mit der Mehrzweckhalle Gütschhalle, der alten Kanzlei und dem ehemaligen Schulhaus auf. Mit der leicht vorgerückten Position schliesst der Schulneubau die Schulanlage als Ensemble ab.
Freiraum
Der Freiraum wird neu als quartier- und zentrumsnahes Kontinuum verstanden. Die Platzierung der Rasenfläche zwischen Schulgebäude und bestehender Wiesenböschung schafft dorfseitig einen von der gesamten Schule genutzten Vorplatz. Zudem wird die bestehende Platzmitte vor der alten Kanzlei sorgfältig neu gestaltet. Die Setzung des Schulneubaus schafft die Voraussetzung für eine wirtschaftliche angemessene und gleichwohl grosszügige Aussenraumgestaltung.


Erdgeschoss

Obergeschoss

Dachgeschoss
Raumstruktur
Der Grundtypus der Schulanlage spannt im Dachgeschoss auf beiden Seiten der Halle jeweils vier Haupträume auf. Zu beiden Hälften sind die südwärts gerichteten Klassenzimmer der Primarschule für die oberen Mischklassen gelegen. Jedes Klassenzimmer verfügt dabei über einen Gruppenraum und einen Garderobenbereich und bilden zusammen eine abgeschlossene Unterrichtseinheit. Die von der Erschliessung separierte Garderobe erlaubt der Klasse diesen als erweiterten Lernbereich zu bespielen.Im einfach gehaltenen Innenraum sind die Trennwände zwischen Gruppen- und Garderobenraum mit mobilen Schiebetüren ausgestattet die eine nach den Lernbedürfnissen entsprechende hohe Nutzungsflexibilität garantieren.
Materialisierung
Die Konstruktion des Schulneubaus basiert auf einer einfachen Holzelementbauweise und referiert mit der einfachen und klar gegliederten Raumstruktur an die traditionellen Bauten vor Ort. Die Fassade zeichnet sich durch eine fein aneinandergereihte stehende Holzlattung aus. Das leicht geneigte Walmdach, der sich aus der Allseitigkeit des Grundtypus erklärt, sucht den Bezug zu den zentrumsnahen öffentlichen Bauten des frühen 20. Jh.
